Hi There! Is this Your First Time?
Did you know if you Register you have access to free search tools including the ability to save listings and property searches? Did you know that you can bypass the search altogether and have listings sent directly to your email address? Check out our how-to page for more info.
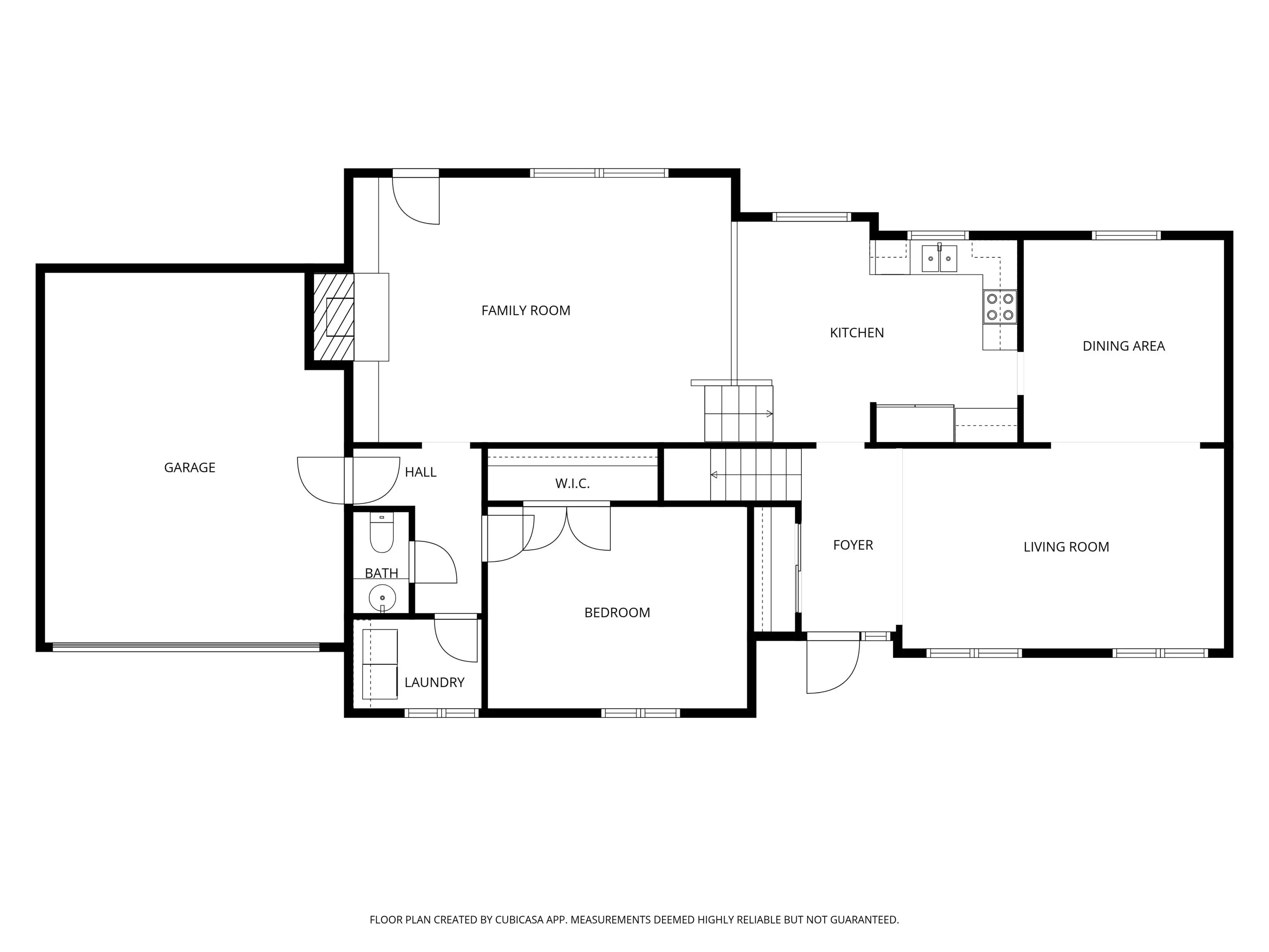
1176 Driftwood Drive Carmel IN 46033
- 4
- Bedrooms
- 2½
- Baths
- N/A
- SQ. Feet
(Above Ground)
- 0.32
- Acres
Experience the best of Cool Creek North living, where timeless charm meets today's updates on a tree-lined street in coveted Carmel. Step inside to sun-filled living spaces designed for gathering and relaxing, with hardwood floors flowing into an open-concept family room anchored by a classic fireplace. The flexible layout offers dedicated space for work, play, and quiet evenings in. Enjoy peace of mind with new HVAC (2025) and windows (2021). The private owner's suite is a true retreat, while three additional bedrooms provide options for guests or a home office. Entertain with ease in the spacious kitchen and formal dining area or take the party outdoors to your fully fenced backyard oasis-ideal for play, gardening, or relaxing after a stroll through the neighborhood. All this, just minutes from Carmel's top-rated schools, parks, shopping, and dining-plus the freedom of no HOA.
Property Details
Interior Features
- Appliances: Dishwasher, Disposal, Gas Water Heater, Exhaust Fan, MicroHood, Electric Oven, Refrigerator
- Cooling: Central Air
- Heating: Forced Air, Natural Gas
Exterior Features
- Setting / Lot Description: Rural - Subdivision, Sidewalks, Mature Trees
- # Acres: 0.32
Listing Office: Century 21 Scheetz
Similar Properties To: 1176 Driftwood Drive, Carmel
Cool Creek North
- MLS® #:
- 22010000
- Provider:
- F.c. Tucker Company
Lakes At Hayden Run
- MLS® #:
- 22068960
- Provider:
- Myl Realty, Llc
Brookshire North
- MLS® #:
- 22076616
- Provider:
- F.c. Tucker Company
Hunters Creek Village
- MLS® #:
- 22087448
- Provider:
- Re/max Advanced Realty
Albany Village
- MLS® #:
- 22086227
- Provider:
- Compass Indiana, Llc
Brookstone Park
- MLS® #:
- 22092822
- Provider:
- Goal Properties
Danbury Estates
- MLS® #:
- 22093338
- Provider:
- Highgarden Real Estate
The Grove At Legacy
- MLS® #:
- 22026216
- Provider:
- Trueblood Real Estate
View all similar properties here
All information is provided exclusively for consumers' personal, non-commercial use, and may not be used for any purpose other than to identify prospective properties that a consumer may be interested in purchasing. All Information believed to be reliable but not guaranteed and should be independently verified. © 2026 MIBOR Broker Listing Cooperative®. All rights reserved.
Listing information last updated on April 15th, 2026 at 8:43pm EDT.









