Hi There! Is this Your First Time?
Did you know if you Register you have access to free search tools including the ability to save listings and property searches? Did you know that you can bypass the search altogether and have listings sent directly to your email address? Check out our how-to page for more info.
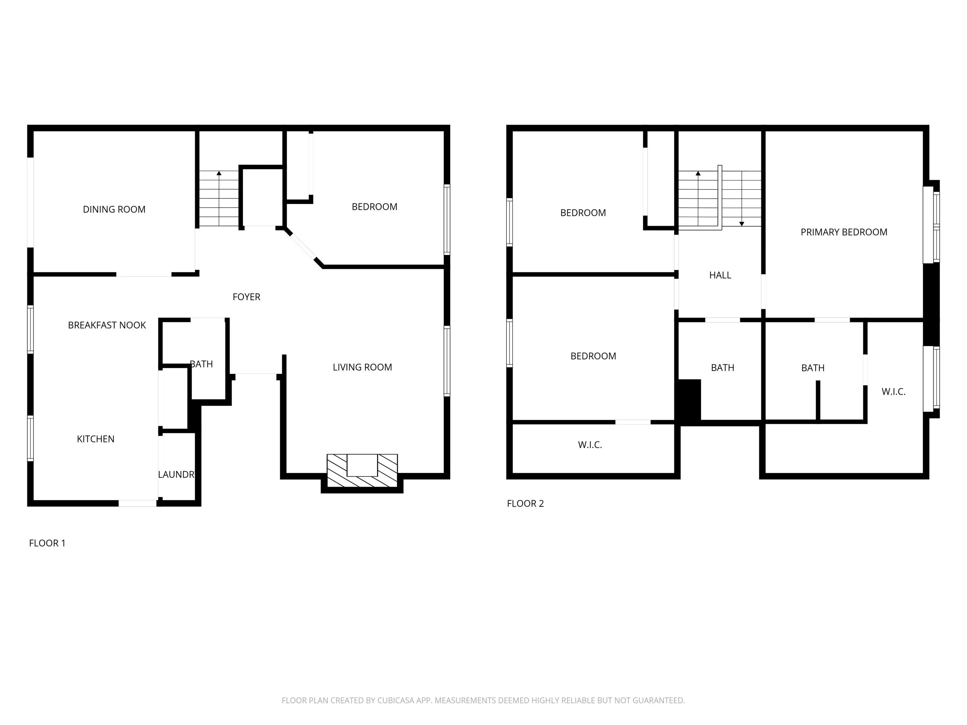
4664 Lambeth Walk Carmel IN 46033
- 4
- Bedrooms
- 2½
- Baths
- N/A
- SQ. Feet
(Above Ground)
- 0.14
- Acres
Nestled in the custom Brookshire Village neighborhood within the highly rated Carmel Schools district, this beautifully updated 4-bedroom, 2.5-bath home offers the perfect blend of comfort, character, and convenience. Freshly painted throughout, the main floor features new luxury vinyl plank flooring, an eat-in kitchen with newly painted cabinetry, subway tile backsplash, and plenty of space for casual dining. A formal dining room and spacious living room with a wood-burning fireplace and custom built-ins create a warm, inviting atmosphere for everyday living and entertaining. Upstairs, you'll find three large bedrooms with large closets and built-in shelving, including a primary suite with a walk-in tile shower and a generous closet that wraps around the bathroom. The fourth bedroom is conveniently located on the main floor. Outside, enjoy a fenced backyard surrounded by mature trees and newly added neighborhood sidewalks perfect for evening walks. Major updates include a 3 year-old roof, 6 year-old HVAC, new water heater (2020), and washer/dryer (2022). Ideally located within a 1-2 minute drive to Mohawk Trails Elementary and offering easy access to Keystone Parkway, this home is also just minutes from numerous parks, top-rated golf courses, and the Brookshire Golf Club-truly showcasing Carmel living at its best!
Property Details
Interior Features
- Amenities: Maintenance
- Appliances: Dishwasher, Down Draft, Dryer, Gas Water Heater, Microwave, Gas Oven, Refrigerator
- Cooling: Central Air
- Heating: Forced Air, Natural Gas
Exterior Features
- Features: Storage Shed
- Setting / Lot Description: Mature Trees
- # Acres: 0.14
Listing Office: @properties
Similar Properties To: 4664 Lambeth Walk, Carmel
The Grove At Legacy
- MLS® #:
- 22083030
- Provider:
- F.c. Tucker Company
Gramercy West
- MLS® #:
- 22059855
- Provider:
- F.c. Tucker Company
The Grove At Legacy
- MLS® #:
- 22069388
- Provider:
- Match House Realty Group Llc
Brookstone Park
- MLS® #:
- 22083854
- Provider:
- Re/max Elite Properties
The Grove At Legacy
- MLS® #:
- 22088746
- Provider:
- L.phoenix Realty Llc
Stonehedge Estates
- MLS® #:
- 22071939
- Provider:
- Highgarden Real Estate
Wilson Village
- MLS® #:
- 22069459
- Provider:
- F.c. Tucker Company
Homeplace
- MLS® #:
- 22072772
- Provider:
- Db Realty Group, Llc
View all similar properties here
All information is provided exclusively for consumers' personal, non-commercial use, and may not be used for any purpose other than to identify prospective properties that a consumer may be interested in purchasing. All Information believed to be reliable but not guaranteed and should be independently verified. © 2026 MIBOR Broker Listing Cooperative®. All rights reserved.
Listing information last updated on March 12th, 2026 at 10:58pm EDT.









