Hi There! Is this Your First Time?
Did you know if you Register you have access to free search tools including the ability to save listings and property searches? Did you know that you can bypass the search altogether and have listings sent directly to your email address? Check out our how-to page for more info.
599 Tradewind Brownsburg IN 46112
- 4
- Bedrooms
- 3½
- Baths
- N/A
- SQ. Feet
(Above Ground)
- 0.54
- Acres
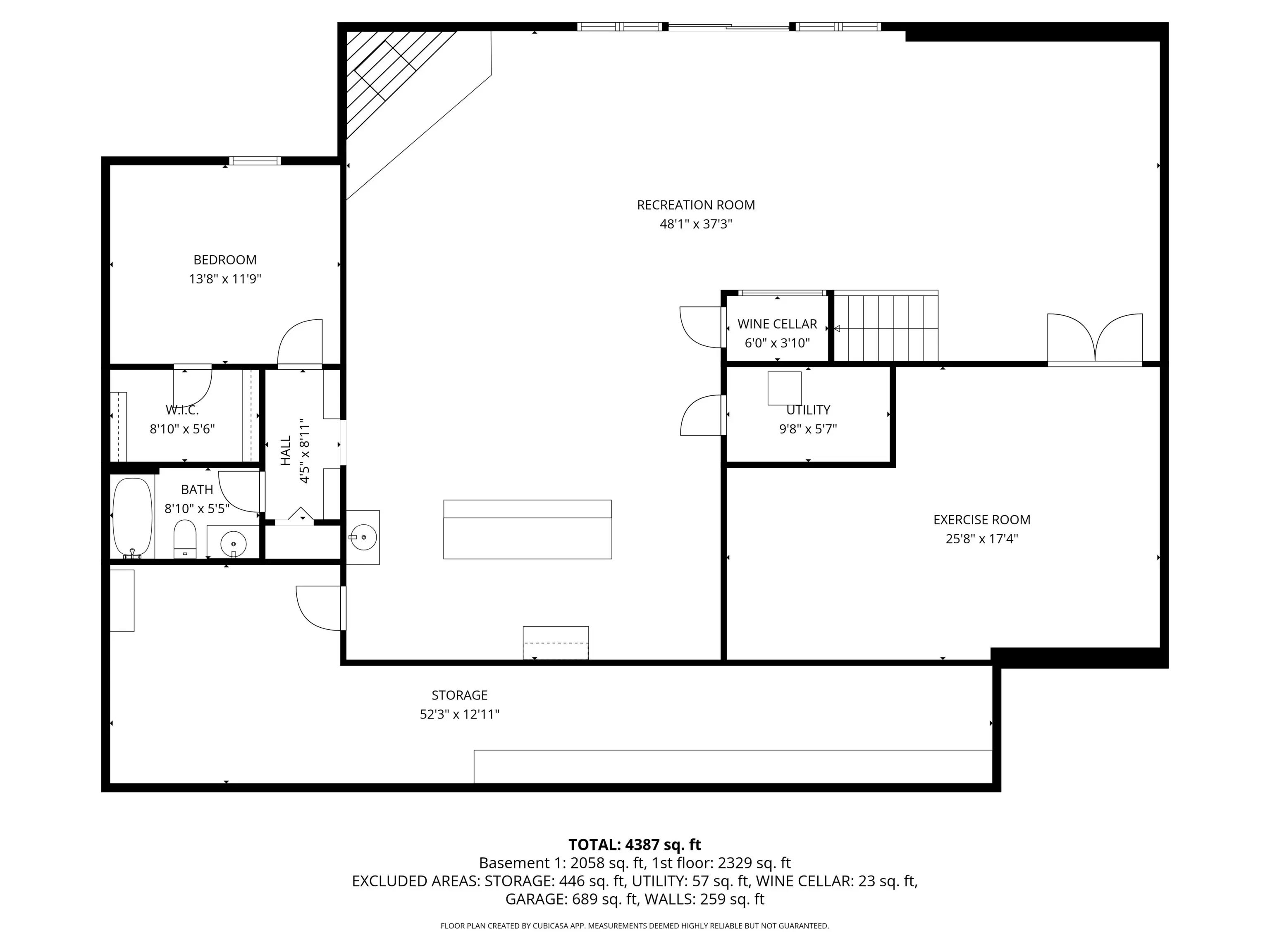
Welcome to this beautifully designed 4-bedroom, 3.5-bath ranch with a full finished basement in desirable Brownsburg-where thoughtful design meets exceptional indoor-outdoor living. The main level offers a split floor plan and an inviting open-concept layout anchored by a spacious great room with a gas log fireplace. The kitchen is a true showstopper, featuring a center island with soapstone countertop, copper sink, quartz countertops, and stainless steel appliances, all seamlessly open to the great room-perfect for everyday living and entertaining alike. The finished walk-out basement expands your living space with a second gas log fireplace in the family room, a stylish bar and wine closet, 4th bedroom, and 3rd full bathroom. An additional room offers flexibility as a home gym, theater room, or hobby space. Step directly outside to the patio - great for entertaining. Out back, enjoy your own private retreat with a deck, outdoor patio, fire pit and a tranquil koi pond, creating an ideal setting for relaxing evenings or hosting gatherings. Located in Windridge Landing, in Brownsburg, this home offers access to top-rated schools, parks and trails, including the popular B&O Trail, and convenient proximity to shopping, dining, and commuter routes-combining peaceful neighborhood living with everyday convenience. This home truly has it all-space, style, and a setting designed for both comfort and entertaining.
Property Details
Interior Features
- Amenities: Insurance, Maintenance, Management, Snow Removal
- Appliances: Gas Cooktop, Dishwasher, Dryer, Disposal, Gas Water Heater, Microwave, Double Oven, Range Hood, Refrigerator, Washer, Wine Cooler
- Cooling: Central Air
- Heating: Forced Air, Natural Gas
Exterior Features
- Features: Water Feature Fountain, Fire Pit
- Setting / Lot Description: Corner Lot, Sidewalks, Street Lights, Rural - Subdivision
- Porch: Deck, Covered
- # Acres: 0.54
Listing Office: Indy Property Experts Llc
Similar Properties To: 599 Tradewind, Brownsburg
Windridge Landing
- MLS® #:
- 22085368
- Provider:
- F.c. Tucker Company
Northridge
- MLS® #:
- 22077569
- Provider:
- Carpenter, Realtors®
Brentwood
- MLS® #:
- 22084801
- Provider:
- Keller Williams Indpls Metro N
Auburn Ridge
- MLS® #:
- 22084450
- Provider:
- M/i Homes Of Indiana, L.p.
Auburn Ridge
- MLS® #:
- 22079004
- Provider:
- M/i Homes Of Indiana, L.p.
Windridge North
- MLS® #:
- 22085002
- Provider:
- Carpenter, Realtors®
Cadence
- MLS® #:
- 22054530
- Provider:
- Indianapolis Homes Realty Group
Windridge
- MLS® #:
- 22026159
- Provider:
- Exp Realty, Llc
View all similar properties here
All information is provided exclusively for consumers' personal, non-commercial use, and may not be used for any purpose other than to identify prospective properties that a consumer may be interested in purchasing. All Information believed to be reliable but not guaranteed and should be independently verified. © 2026 MIBOR Broker Listing Cooperative®. All rights reserved.
Listing information last updated on February 26th, 2026 at 8:58pm EST.









