Hi There! Is this Your First Time?
Did you know if you Register you have access to free search tools including the ability to save listings and property searches? Did you know that you can bypass the search altogether and have listings sent directly to your email address? Check out our how-to page for more info.
8083 Wesleyan Drive Avon IN 46123
- 5
- Bedrooms
- 3½
- Baths
- N/A
- SQ. Feet
(Above Ground)
- 0.25
- Acres
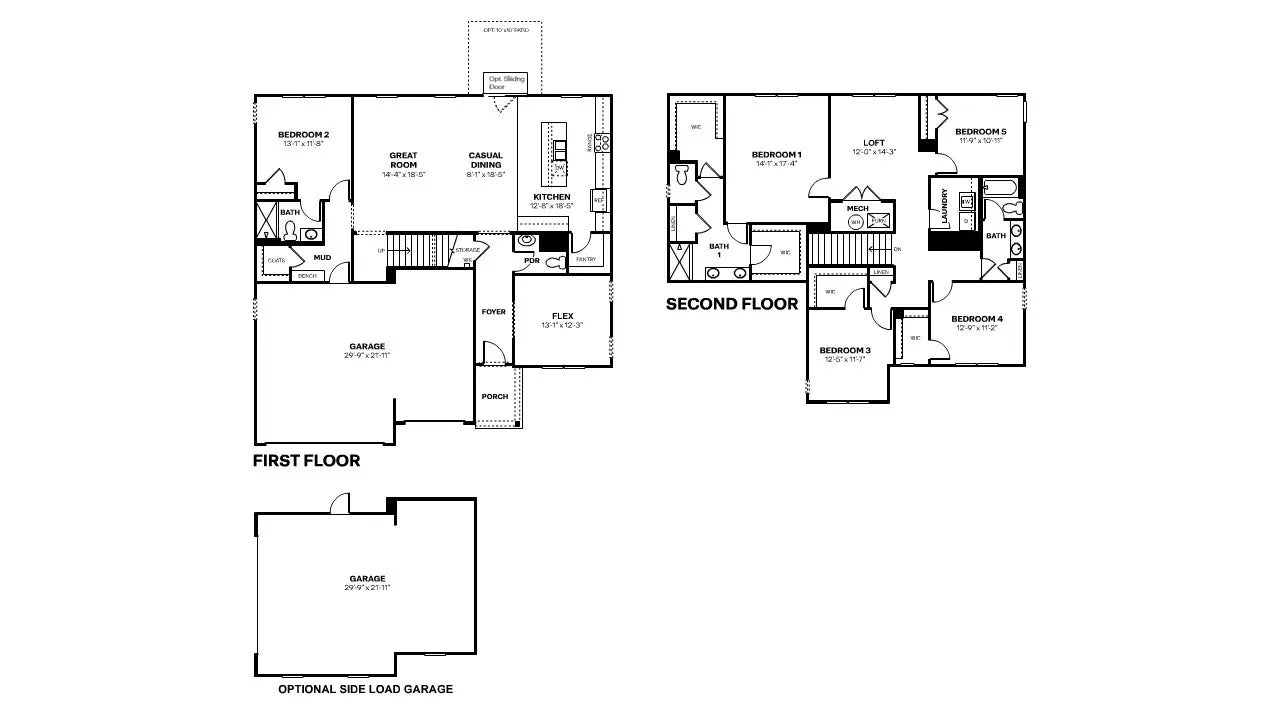
D.R. Horton, America's Builder, joyfully unveils the Johnstown, a breathtaking 3,182 square foot masterpiece that redefines modern living. This exquisite home, boasting 5 spacious bedrooms, 3.5 bathrooms, and a 3-car garage, is tailored for families who cherish both space and style. Imagine stepping into the inviting first floor, where a generously-sized bedroom, an expansive great room, a formal dining area, and a versatile flex room eagerly await your personal touch. At the heart of the Johnstown lies a chef's dream kitchen, where a grand center island and ample quartz countertop space beckon culinary adventures, complemented by sleek gray cabinetry and a convenient corner pantry. The adjacent sunroom, bathed in natural light, offers a perfect sanctuary for relaxation on sunny days. Venture upstairs to discover the luxurious primary suite, a private retreat complete with an indulgent ensuite bathroom with quartz countertops and dual walk-in closets, epitomizing convenience and elegance. The upper level also features three additional bedrooms, a cozy loft space, and a strategically placed laundry room, all harmoniously crafted to enhance family life. As part of D.R. Horton's commitment to smart living, the home is equipped with America's Smart Home Technology, which includes a smart video doorbell, smart Honeywell thermostat, smart door lock, and a Deako light package for a modern, connected living experience.
Property Details
Interior Features
- Amenities: Insurance, Maintenance, Management, Trail(s)
- Appliances: Dishwasher, Electric Water Heater, Disposal, MicroHood, Gas Oven, Refrigerator
- Cooling: Central Air
- Heating: Natural Gas
Exterior Features
- Porch: Covered, Patio
- # Acres: 0.25
Listing Office: Drh Realty Of Indiana, Llc
Similar Properties To: 8083 Wesleyan Drive, Avon
Harper Estates
- MLS® #:
- 22077382
- Provider:
- Drh Realty Of Indiana, Llc
Harper Estates
- MLS® #:
- 22065663
- Provider:
- Drh Realty Of Indiana, Llc
Harper Estates
- MLS® #:
- 22065727
- Provider:
- Drh Realty Of Indiana, Llc
Parks Of Prestwick
- MLS® #:
- 22027098
- Provider:
- Keller Williams Indy Metro S
Bellwood
- MLS® #:
- 22074553
- Provider:
- Trueblood Real Estate
Ians Pointe
- MLS® #:
- 22053246
- Provider:
- Carpenter, Realtors®
Ians Pointe
- MLS® #:
- 22049871
- Provider:
- F.c. Tucker Company
Stone Haven
- MLS® #:
- 22048919
- Provider:
- Carpenter, Realtors®
View all similar properties here
All information is provided exclusively for consumers' personal, non-commercial use, and may not be used for any purpose other than to identify prospective properties that a consumer may be interested in purchasing. All Information believed to be reliable but not guaranteed and should be independently verified. © 2025 MIBOR Broker Listing Cooperative®. All rights reserved.
Listing information last updated on December 19th, 2025 at 10:25pm EST.









