Hi There! Is this Your First Time?
Did you know if you Register you have access to free search tools including the ability to save listings and property searches? Did you know that you can bypass the search altogether and have listings sent directly to your email address? Check out our how-to page for more info.
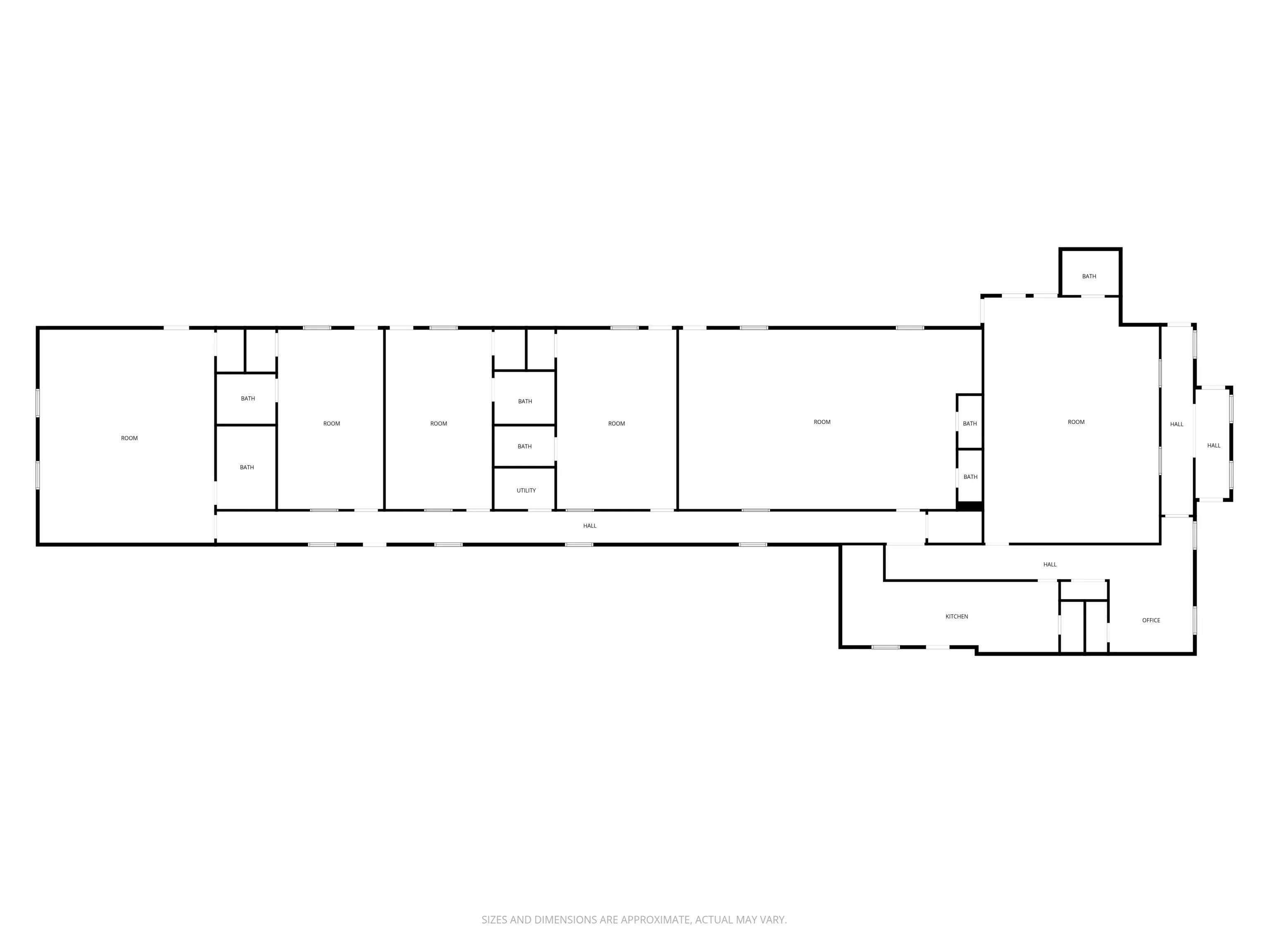
925 Hendricks Drive Lebanon IN 46052
- -
- Bedrooms
- -
- Baths
- N/A
- SQ. Feet
(Above Ground)
- 1
- Acres
Completely renovated and expanded in 2024, this impressive 6,300+ sq. ft. commercial building offers modern functionality and exceptional versatility. A new 3,300 sq. ft. addition was added, featuring two new HVAC systems, upgraded electrical service, and new flooring and roofing throughout the entire structure. The result is a move-in-ready property designed to accommodate a wide range of business uses. Situated on 1 acre with concrete drives and parking for 22+ vehicles, the site offers excellent accessibility and curb appeal-just one mile from I-65 for convenient regional access. Inside, you'll find spacious, flexible rooms that easily adapt to various professional needs. The property is currently used as a child care center, but would be ideal for medical offices, co-working space, professional suites, or other commercial operations. Security and peace of mind are built in, with a fully fenced yard, alarm system, and camera surveillance in place.
Property Details
Interior Features
- Cooling: Central Air
- Heating: Forced Air, Natural Gas
Exterior Features
- # Acres: 1.00
Listing Office: Traditions Realty, Llc
All information is provided exclusively for consumers' personal, non-commercial use, and may not be used for any purpose other than to identify prospective properties that a consumer may be interested in purchasing. All Information believed to be reliable but not guaranteed and should be independently verified. © 2025 MIBOR Broker Listing Cooperative®. All rights reserved.
Listing information last updated on December 29th, 2025 at 5:10pm EST.

