Indianapolis Real Estate Index

Contact Red Door Real Estate

If you have any questions or need more detailed information, please feel free to contact me via phone at 317-RED-DOOR / 317-733-3667 or fill out the form to let us know how we can help with your real estate needs.

Phone: (317) 733-3667
Fax: (317) 663-0840

Refine your search...
Use the form below to narrow down your results
Hi There! Is this Your First Time?

Did you know if you Register you have access to free search tools including the ability to save listings and property searches? Did you know that you can bypass the search altogether and have listings sent directly to your email address? Check out our how-to page for more info.

Back to Results
$450,000 -

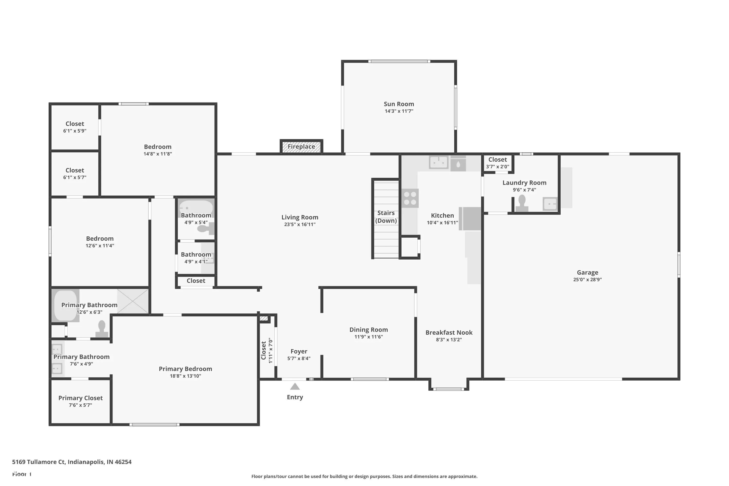
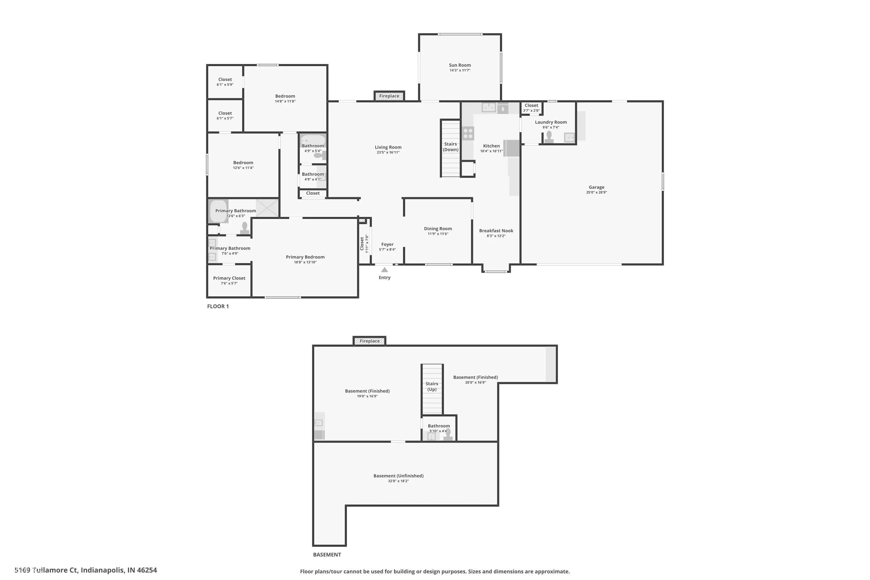
5169 Tullamore Court Indianapolis IN 46254

3
Bedrooms
3
Baths
N/A
SQ. Feet
(Above Ground)
0.52
Acres

Welcome home to this classic ranch home in the desirable Ballinshire neighborhood. This home has been wonderfully maintained by the same owner for over 25 years and offers a blend of comfort and elegance and has a new HVAC system! The interior features both formal and casual dining areas, complemented by spacious living areas. The kitchen boasts updated countertops, abundant cabinet space, an eat-in breakfast nook, and overlooks a charming sunroom. The main living room has soaring ceilings and a cozy fireplace, while the partially finished basement also includes a fireplace and ample storage. Outdoor living is a delight with an enjoyable sunroom that opens onto a spacious deck, overlooking a private backyard. Additional storage can be found throughout the home, including in the three-car tandem garage which features a convenient service door to the backyard.

Follow ►
  • Subscribe to Our Blog RSS
Read More...

Property Details

Price: $450,000 Previously: $450,000 Originally: $450,000 Bedrooms: 3 Bathrooms: 3.00 MLS #: 22065465 Year Built: 1988 Township: Pike Sq. Ft Total: 3,471 Type: Residential Zip Code: 46254 City: Indianapolis Subdivision: Ballinshire County: Marion School District: MSD Pike Township

Interior Features

Interior Features:
  • Appliances: Dishwasher, Disposal, Microwave, Electric Oven, Range Hood, Refrigerator, Gas Water Heater, Humidifier, Water Softener Owned
  • Cooling: Central Air
  • Heating: Electronic Air Filter, Forced Air, Natural Gas

Exterior Features

Exterior Features:
  • Setting / Lot Description: Cul-De-Sac, Trees-Small (Under 20 Ft)
  • Porch: Deck, Patio
  • # Acres: 0.52

Listing Office: F.c. Tucker Company

Similar Properties To: 5169 Tullamore Court, Indianapolis

$399,995
5 br, 3½ ba, 3,220 ft²
Hunters Crossing
MLS® #:
22035801
Provider:
Compass Indiana, Llc
10358 Pronghorn Lane, Indianapolis
$360,000
3 br, 1 ba, 2,686 ft²
Cranbrook Addition
MLS® #:
22065898
Provider:
Carpenter, Realtors®
4730 E 71st Street, Indianapolis
$349,900
3 br, 2½ ba, 2,608 ft²
Northern Estates
MLS® #:
22055963
Provider:
Macgill Team, P.c.
3343 Devereaux Drive, Indianapolis
$529,900
4 br, 2½ ba, 3,203 ft²
Admirals Bay
MLS® #:
22039915
Provider:
F.c. Tucker Company
12335 Old Stone Drive, Indianapolis
$325,000
3 br, 2½ ba, 2,530 ft²
Stearns Sub
MLS® #:
22059396
Provider:
Compass Indiana, Llc
66 Johnson Avenue, Indianapolis
$374,900
5 br, 2½ ba, 2,156 ft²
No Subdivision
MLS® #:
22051074
Provider:
Hoosier, Realtors®
423 W Thompson Road, Indianapolis
$359,999
3 br, 2½ ba, 2,010 ft²
No Subdivision
MLS® #:
22049641
Provider:
Exp Realty, Llc
3155 W 57th Street, Indianapolis
$415,000
4 br, 2½ ba, 2,873 ft²
Bethel Creek
MLS® #:
22053328
Provider:
Midland Realty Group, Inc.
9426 Orchard Cove Drive, Indianapolis

View all similar properties here

All information is provided exclusively for consumers' personal, non-commercial use, and may not be used for any purpose other than to identify prospective properties that a consumer may be interested in purchasing. All Information believed to be reliable but not guaranteed and should be independently verified. © 2025 MIBOR Broker Listing Cooperative®. All rights reserved.

Listing information last updated on October 9th, 2025 at 1:40am EDT.

My Account

Log in, to view your saved searches and add to your favorite listings.

Sign Up Here For Your FREE Account

... So You Can:

  • View detailed property information
  • Print detailed property flyers
  • Save your searches & favorite homes
  • Inquire about a private showing
  • Map individual property locations
  • Share your favorite homes with friends
Interested In This Property?