Hi There! Is this Your First Time?
Did you know if you Register you have access to free search tools including the ability to save listings and property searches? Did you know that you can bypass the search altogether and have listings sent directly to your email address? Check out our how-to page for more info.
3725 Senour Road Indianapolis IN 46239
- 2
- Bedrooms
- 1½
- Baths
- N/A
- SQ. Feet
(Above Ground)
- 7.5
- Acres
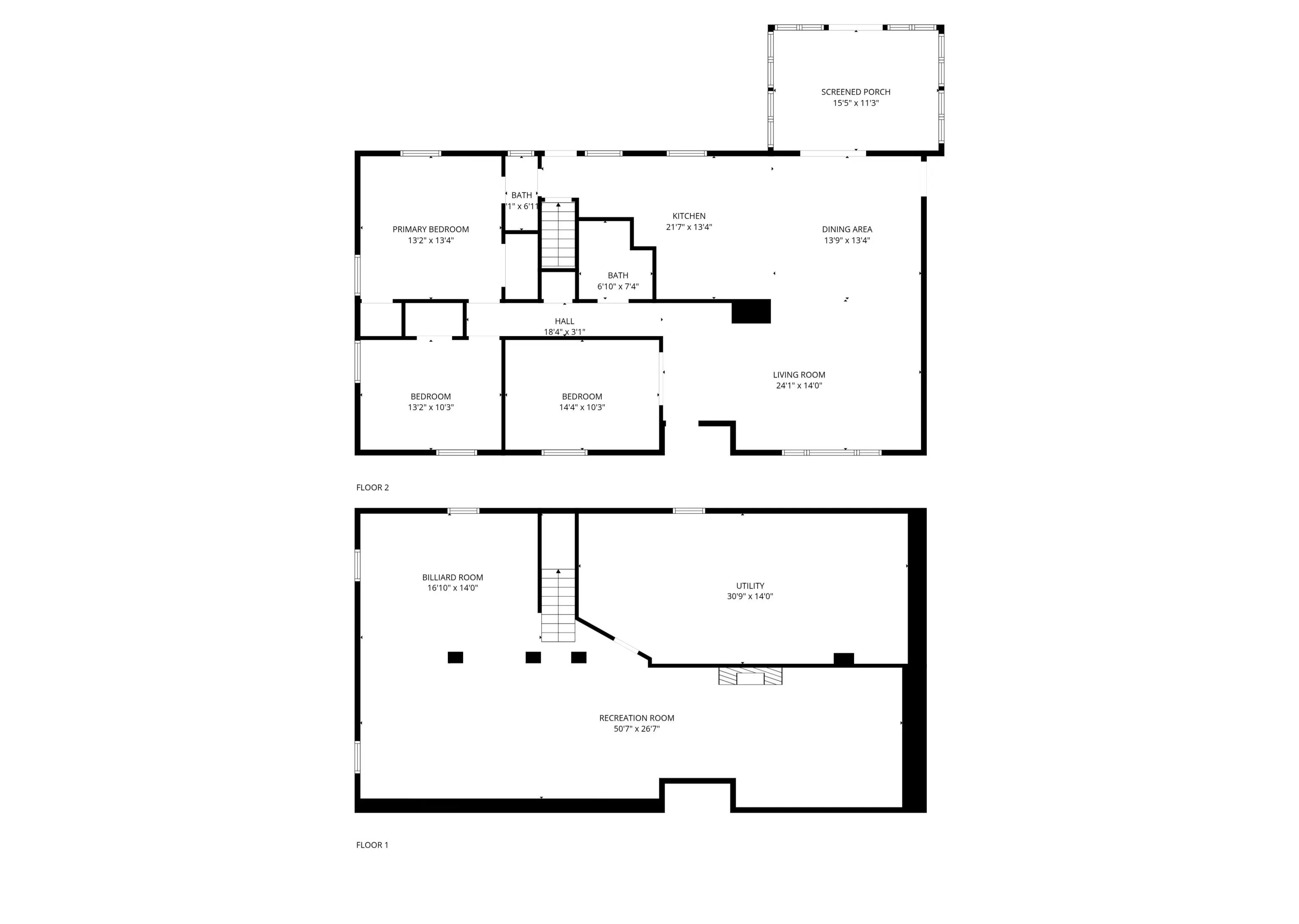
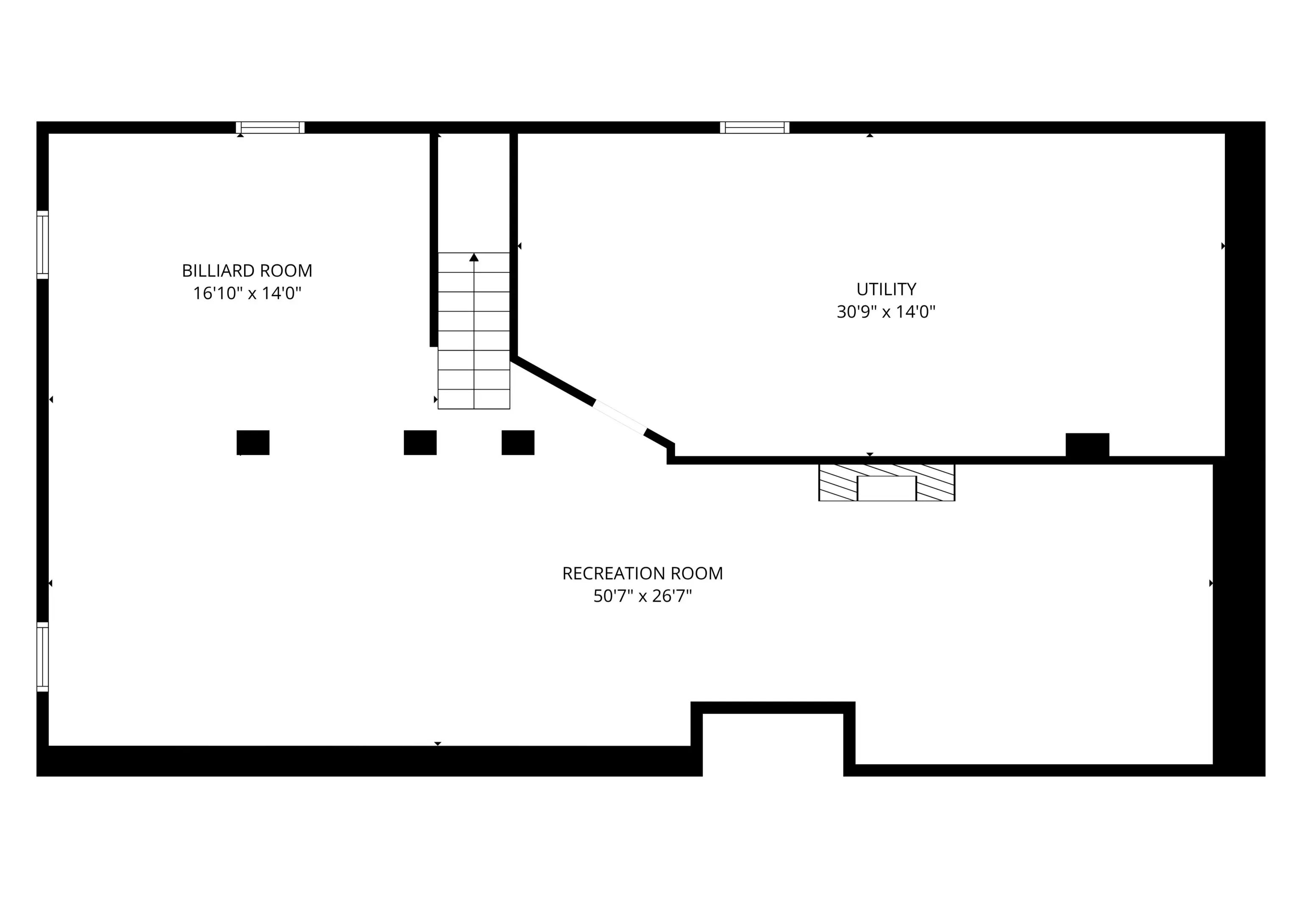
7.5 wooded acres, a buried survival shelter/bunker, 2 barns, multiple outdoor living spaces, a beautiful sunroom, an updated kitchen, full basement, tons of privacy & more. Did we catch your attention yet? Here are the details. This is the home you need to live off the grid. It comes with a Generac natural gas backup generator. This 2 bedroom home could easily convert the main level office back to a 3rd bedroom. The main level has hardwood floors and an amazing chef's commercial style kitchen (check out the range and hood). In the basement, the only thing missing is the flooring finish of your choice. The full basement has been professionally waterproofed. Enjoy mornings in the sunroom with a split unit for cooling and heating. Sit under the covered patio in the evenings or on the open patio to catch some sun. Head out back to 2 barns, one for horses and the other is a pole barn. The buried survival shelter behind the horse barn is like something you've never seen before. It has power, a secondary escape hatch, ventilation, and more. And the land is wooded and serene. Check out the list of improvements which include: roof 21, windows 09, HVAC 08, well pressure tank 19. Basement gun safe, all appliances, pool table, and more all stay. Click on the links for the pics, 3D tours, and video fly through of the home, barns, and survival shelter. FAQ sheet has more details.
Property Details
Interior Features
- Appliances: Dishwasher, Dryer, Humidifier, Exhaust Fan, Gas Oven, Range Hood, Refrigerator, Free-Standing Freezer, Washer, Water Heater, Water Purifier, Water Softener Owned
- Cooling: Central Air
- Heating: Forced Air
Exterior Features
- Features: Barn Pole, Storage
- Setting / Lot Description: Not In Subdivision, Rural - Not Subdivision, Mature Trees, Wooded
- Porch: Covered, Glass Enclosed
- # Acres: 7.50
Listing Office: Envoy Real Estate, Llc
Similar Properties To: 3725 Senour Road, Indianapolis
No Subdivision
- MLS® #:
- 22046603
- Provider:
- My Agent
No Subdivision
- MLS® #:
- 22071883
- Provider:
- D. Braun & Company
No Subdivision
- MLS® #:
- 22027527
- Provider:
- @properties
No Subdivision
- MLS® #:
- 22061409
- Provider:
- Maywright Property Co.
No Subdivision
- MLS® #:
- 22066137
- Provider:
- Paradigm Realty Solutions
No Subdivision
- MLS® #:
- 22047544
- Provider:
- E-rocks Real Estate
No Subdivision
- MLS® #:
- 22067555
- Provider:
- Tyler Knows Real Estate Llc
No Subdivision
- MLS® #:
- 22053733
- Provider:
- @properties
View all similar properties here
All information is provided exclusively for consumers' personal, non-commercial use, and may not be used for any purpose other than to identify prospective properties that a consumer may be interested in purchasing. All Information believed to be reliable but not guaranteed and should be independently verified. © 2025 MIBOR Broker Listing Cooperative®. All rights reserved.
Listing information last updated on November 17th, 2025 at 8:25pm EST.









