Hi There! Is this Your First Time?
Did you know if you Register you have access to free search tools including the ability to save listings and property searches? Did you know that you can bypass the search altogether and have listings sent directly to your email address? Check out our how-to page for more info.
7873 Fairwood Boulevard Plainfield IN 46168
- 5
- Bedrooms
- 3½
- Baths
- N/A
- SQ. Feet
(Above Ground)
- 0.34
- Acres
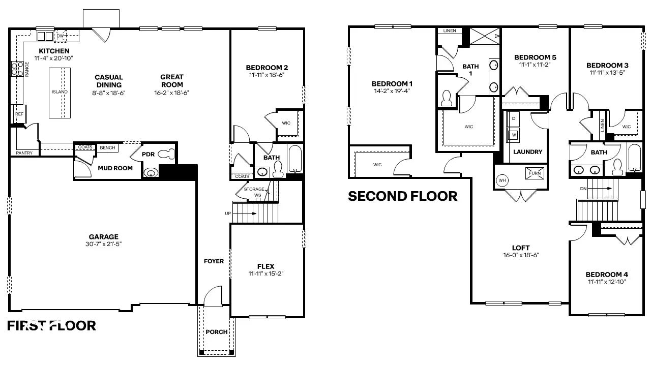
D.R. Horton, renowned as America's Builder, proudly introduces the Dayton-a thoughtfully designed home that offers an impressive 3,388 square feet of living space. This expansive layout includes five bedrooms, three and a half baths, a versatile flex room, a spacious loft, and a three-car garage. The open concept floor plan seamlessly blends a large great room, a casual dining area, and a well-appointed kitchen, making it ideal for entertaining. The kitchen is a chef's delight, featuring a generous center island, abundant countertop and cabinet space, a walk-in pantry, and state-of-the-art stainless-steel appliances. The main level's flex room adapts to your needs, whether as a home office, formal dining room, or playroom. Guests will appreciate the convenience of a main level bedroom with an adjacent bathroom. Upstairs, the primary bedroom suite is a true retreat, boasting two walk-in closets and a luxurious ensuite bath complete with a dual-sink vanity, elegant shower, linen storage, and private water closet. The secondary bedrooms are spacious with ample closet space and are complemented by a hall bath with a dual-sink vanity and separate commode and shower area. The Dayton also includes America's Smart Home package, a cutting-edge suite of smart home products designed to keep you connected with what matters most. In addition to large yards, Fairwood homeowners enjoy serene ponds, mature trees, a covered picnic pavilion, and nearby walking trail access. This picturesque community sits only moments from everyday conveniences and major roads including IN-267, US-40, US-36 and I-70, Indianapolis International Airport, and all the fantastic dining and shopping opportunities in Avon and Plainfield. Many Fairwood residents also enjoy living within walking distance from Avon High School. You will enjoy the town's sense of community, exploring amazing parks such as Washington Township Park, floating at Splash Island, spending time at Beasley's Orchards and Gardens.
Property Details
Interior Features
- Amenities: Picnic Area, Trail(s)
- Appliances: Dishwasher, Electric Water Heater, Disposal, MicroHood, Gas Oven, Refrigerator
- Cooling: Central Air
- Heating: Natural Gas
Exterior Features
- Setting / Lot Description: Sidewalks, Street Lights
- Porch: Covered, Patio
- # Acres: 0.34
Listing Office: Drh Realty Of Indiana, Llc
Similar Properties To: 7873 Fairwood Boulevard, Plainfield
Fairwood
- MLS® #:
- 22042278
- Provider:
- The Stewart Home Group
Fairwood
- MLS® #:
- 22060848
- Provider:
- Drh Realty Of Indiana, Llc
Fairwood
- MLS® #:
- 22066013
- Provider:
- Exp Realty, Llc
Fairwood
- MLS® #:
- 22019729
- Provider:
- Exp Realty, Llc
Fairwood
- MLS® #:
- 22069257
- Provider:
- Berkshire Hathaway Home
Williamsburg In The Woods
- MLS® #:
- 22062959
- Provider:
- Jeneene West Realty, Llc
Waterleaf
- MLS® #:
- 22011321
- Provider:
- Kline Properties, Inc.
Bo Mar Manor
- MLS® #:
- 22051314
- Provider:
- Carpenter, Realtors®
View all similar properties here
All information is provided exclusively for consumers' personal, non-commercial use, and may not be used for any purpose other than to identify prospective properties that a consumer may be interested in purchasing. All Information believed to be reliable but not guaranteed and should be independently verified. © 2025 MIBOR Broker Listing Cooperative®. All rights reserved.
Listing information last updated on October 29th, 2025 at 6:42pm EDT.









