Hi There! Is this Your First Time?
Did you know if you Register you have access to free search tools including the ability to save listings and property searches? Did you know that you can bypass the search altogether and have listings sent directly to your email address? Check out our how-to page for more info.
2611 E New York Street Indianapolis IN 46201
- 3
- Bedrooms
- 2½
- Baths
- N/A
- SQ. Feet
(Above Ground)
- 0.37
- Acres
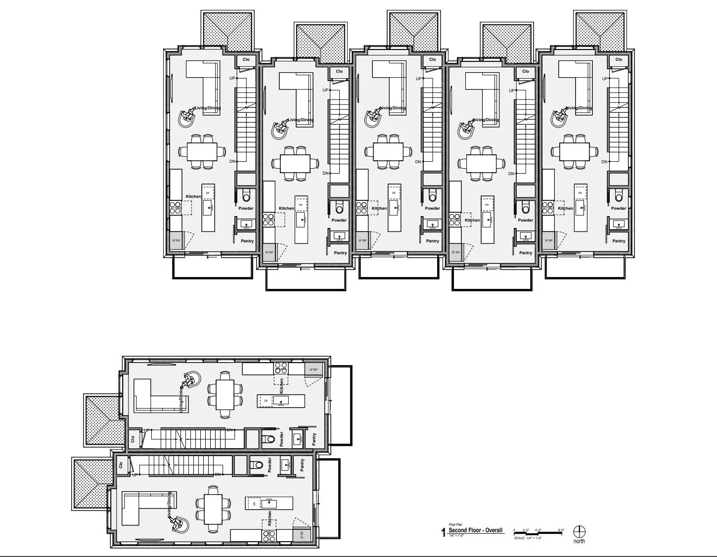
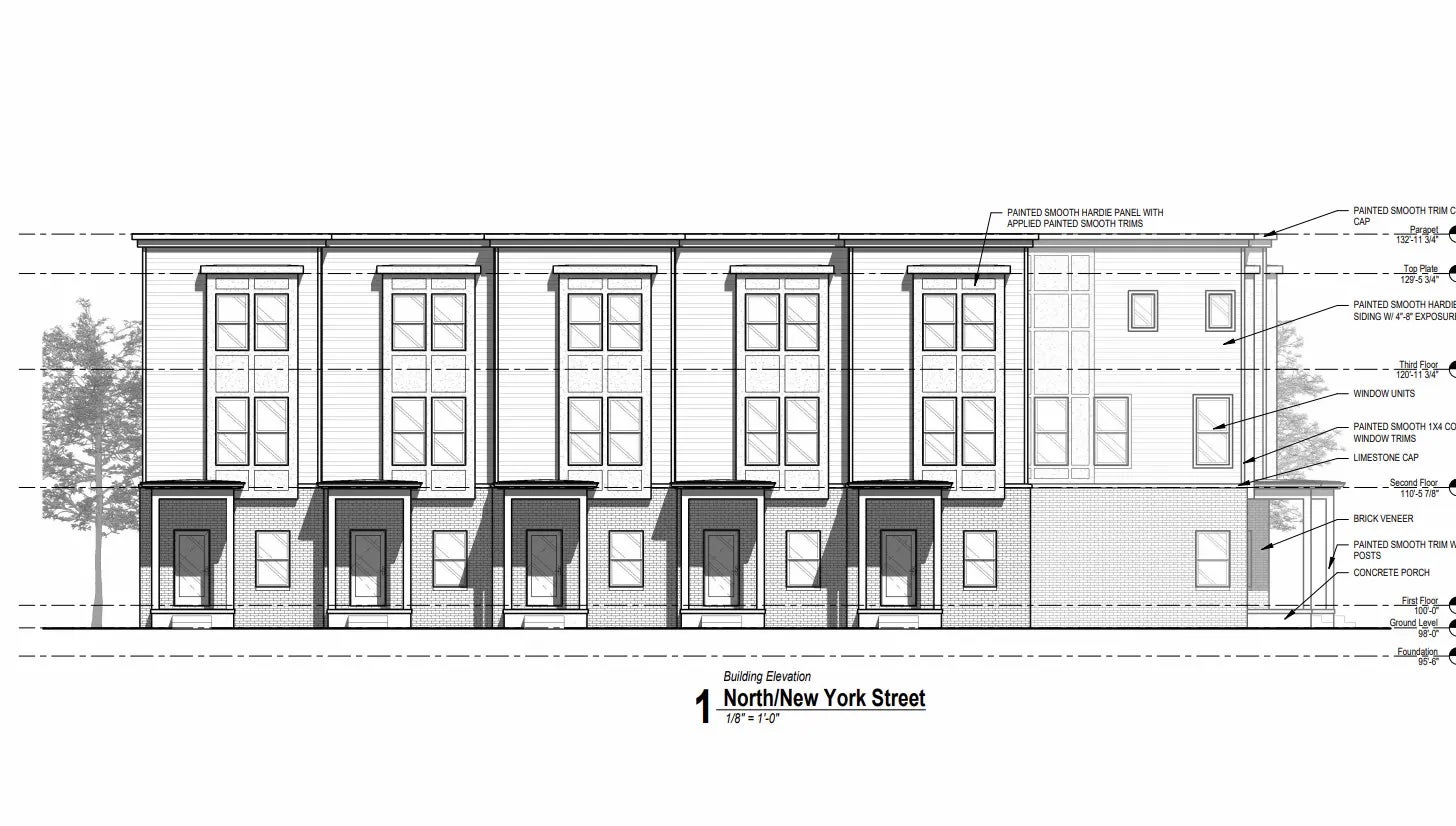
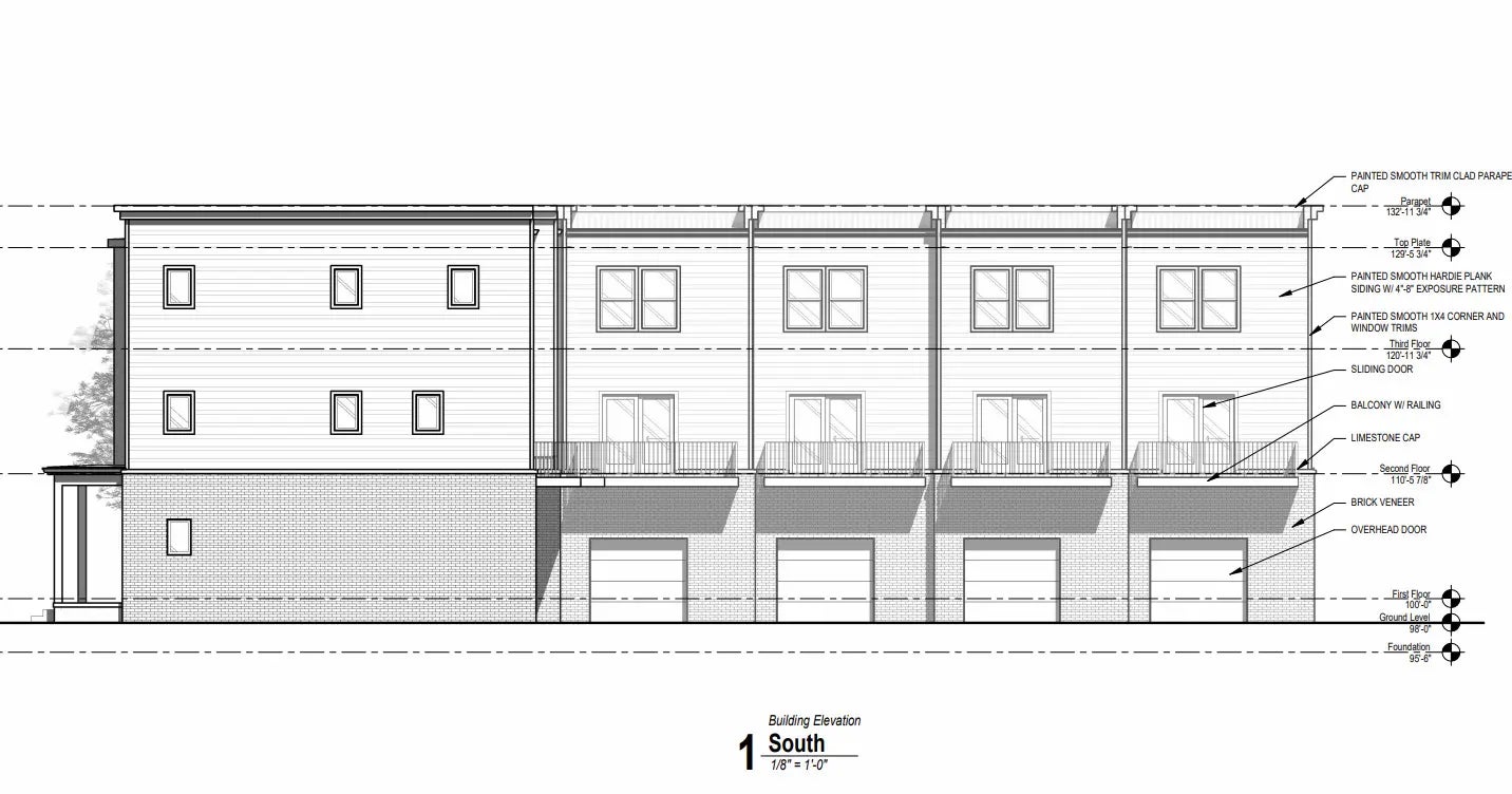
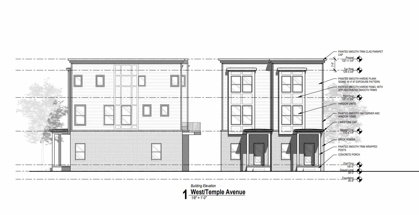
WEEKEND/AFTER 6PM SHOWINGS NEED TO BE ARRANGED DIRECLTY- ONE OF THREE REMAINING TOWNHOMES!! AMAZING NEW CONSTRUCTION of Three-Story Townhome Development for Affordable Buyers. This is a wonderful three bedroom, 2.5 bath home has gorgeous kitchen with quartz counters and stainless steel appliances included in the sale. Convenient second story laundry room. Ensuite master bath. This is part of the Englewood CDC's Temple Avenue Townhome Project. Come see the transformation of this block from vacant to vibrant. These homes are conveniently located to downtown and Irvington. Tons of New Construction nearby, within walking distance of great restaurants, Thomas Gregg Elementary, Paramount MS/Purdue Polytechnic High School. Wonderful bike lane access from downtown to Irvington soon with the new two way New York conversion. This is an affordable housing development by Englewood Community Development Corp. We have one unit left at the higher income limit (80% AMI). Buyer's income must qualify under current HUD Income Limits. Property must be owner-occupied. INCOME RESTRICTIONS APPLY WITHOUT EXCEPTION! HUD HOME Program Income Limits - total combined household income of all members 18+ cannot exceed the following income thresholds: 80% AMI LIMITS- Household of 1: $62,000, Household of 2: $70,850, Household of 3: $79,700, Household of 4: $88,550, Household of 5: $95,650, Household of 6: $102,750. 60% AMI LIMITS Household of 1: $46,500, Household of 2: $53,200, Household of 3: $59,800, Household of 4: $66,400, Household of 5: $75,300, Household of 6: $86,300. Seller will collect income documentation for compliance. Home comes with builder warranty. See associated documents for Floor Plans. Four Duplex and Seven Townhomes Available. Taxes are currentl incorrect and not reassesed. Applications considered in order received. Photos are of similar completed unit in the same project.
Property Details
Interior Features
- Amenities: Insurance, Maintenance
- Appliances: Dishwasher, Electric Water Heater, Microwave, Electric Oven, Refrigerator, Washer
- Cooling: Central Air
- Heating: Forced Air, Heat Pump
Exterior Features
- Features: Balcony
- Setting / Lot Description: Busline
- Porch: Covered
- # Acres: 0.37
Listing Office: Fathom Realty
Similar Properties To: 2611 E New York Street, Indianapolis
Ogle Etal East Park
- MLS® #:
- 22009618
- Provider:
- Fathom Realty
Willard Place
- MLS® #:
- 22063843
- Provider:
- Elevate 317 Realty Llc
Deweys Sub
- MLS® #:
- 22025708
- Provider:
- Elevate 317 Realty Llc
Sutherland Place Townhomes
- MLS® #:
- 22060375
- Provider:
- @properties
Parker
- MLS® #:
- 22025688
- Provider:
- Elevate 317 Realty Llc
Willard Place
- MLS® #:
- 22074893
- Provider:
- Elevate 317 Realty Llc
Parker Ave
- MLS® #:
- 22025528
- Provider:
- Elevate 317 Realty Llc
North Pointe Bay
- MLS® #:
- 22080038
- Provider:
- Real Broker, Llc
View all similar properties here
All information is provided exclusively for consumers' personal, non-commercial use, and may not be used for any purpose other than to identify prospective properties that a consumer may be interested in purchasing. All Information believed to be reliable but not guaranteed and should be independently verified. © 2026 MIBOR Broker Listing Cooperative®. All rights reserved.
Listing information last updated on February 25th, 2026 at 6:43pm EST.









